IRONCLAD 鐵甲19吋標準機櫃 RA1 標準機櫃家族 量產主力標準機櫃系列是依據ANSI/EIA RS-310-C.D 19"ETSI及IEC-297-3公制之標準規範製造 產品通過UL及CE認證,並通過MIL-STD-167震動測試。 圓弧鋁柱造型,機架多台並聯時更能達到所需功能。 主體採用AL6063T5鋁擠型鋁柱。 活動型鋁柱可任意置設於機櫃前後以達客戶實際需求。 ※900m/m深機櫃內深仍可維持750m/m活動鐵柱孔符合ANSI/EIARS-310C之規格每1U做一個記號並配合彈片(浮動)螺母來調整SERVER的上下位置,每台機櫃附50組面板螺絲組。 機櫃表面採用靜電粉體塗裝烤漆,防塵、防氧化,不易刮傷、耐酸鹼。 前、後門組可選擇強化玻璃及蜂巢式孔門,並附隱藏式門鎖及鑰匙。 側板裝設為可拆式,僅需雙手將扣件上拉即可分離,側板與機櫃主體無需額外使用任何工具。 機櫃前、後門側板及上、下框外觀無任何螺絲零件而影響整體的美觀。 電源供應採用標準3孔8只式電源插座,電壓可選擇為110V或220V具備電源開啟指示燈,15A防突波保護裝置,電壓線耐壓125V至250V,耐溫度為負20°C至75°C,標準線長為1.7公尺,且通過UL認證。另可加裝接地銅條。 為配合機房空間設計,特將機櫃正面寬度增加至600公釐(m/m)內部仍維持19英吋標準。 機櫃上方,標準配備有兩個4"外抽式風扇,客戶可依據需求加裝風扇組。 配備有可剎式車輪,使機櫃不易因外力而晃動,並加裝地平螺絲以維持機櫃的平衡。 使用直角連接鍵用於連接機櫃和地板固定,可以螺桿穿過機架與高架地板鎖於水泥樓板以達防震效果。 標準配備 壓克力門、可拆式後門、可拆式側板、4"x2風扇組、束線環、電源組、輪子、地平螺絲、面板螺絲組
IRONCLAD 鐵甲19吋標準機櫃 RA1 標準機櫃家族 量產主力標準機櫃系列是依據ANSI/EIA RS-310-C.D
19"ETSI及IEC-297-3公制之標準規範製造
產品通過UL及CE認證,並通過MIL-STD-167震動測試。
圓弧鋁柱造型,機架多台並聯時更能達到所需功能。
主體採用AL6063T5鋁擠型鋁柱。
活動型鋁柱可任意置設於機櫃前後以達客戶實際需求。
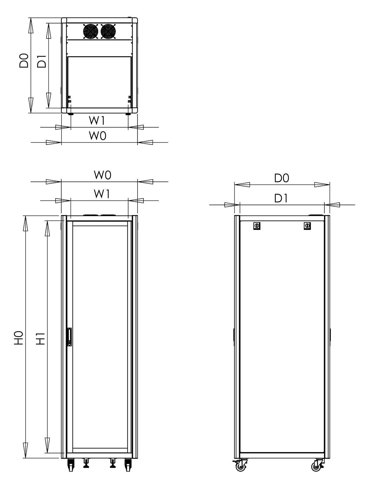
※900m/m深機櫃內深仍可維持750m/m活動鐵柱孔符合ANSI/EIARS-310C之規格每1U做一個記號並配合彈片(浮動)螺母來調整SERVER的上下位置,每台機櫃附50組面板螺絲組。
機櫃表面採用靜電粉體塗裝烤漆,防塵、防氧化,不易刮傷、耐酸鹼。
壓克力門、可拆式後門、可拆式側板、4"x2風扇組、束線環、電源組、輪子、地平螺絲、面板螺絲組

| 編號 | 敘述 | 數量 |
|---|---|---|
| 1 | RA1-框架 | 1 |
| 2 | RA1-前門組 | 1 |
| 3 | RA1-後門組 | 1 |
| 4 | RA1-側板組 | 2 |
| 5 | RA1-41EIA | 4 |
| 6 | RA1-上框補板組 | 1 |
| 7 | RA1-下框補板組 | 1 |
| 8 | RA1-輪座組 | 2 |
| 9 | 2.5英吋輪 | 4 |
| 10 | 地平螺絲 | 4 |

| 型號 | 單位 | 內高 | 總高 | 內寬 | 總寬 | 內深 | 總深 |
|---|---|---|---|---|---|---|---|
| MODEL NO. | UNIT | H1 (mm) | H0 (mm) | W1 (mm) | W0 (mm) | D1 (mm) | D0 (mm) |
| RA1-15U-750 | 15U | 667 | 839 | 450 | 600 | 660 | 750 |
| RA1-20U-750 | 20U | 889 | 1061 | 450 | 600 | 660 | 750 |
| RA1-25U-750 | 25U | 1111 | 1283 | 450 | 600 | 660 | 750 |
| RA1-30U-750 | 30U | 1334 | 1506 | 450 | 600 | 660 | 750 |
| RA1-35U-750 | 35U | 1556 | 1728 | 450 | 600 | 660 | 750 |
| RA1-35U-900 | 35U | 1556 | 1728 | 450 | 600 | 810 | 900 |
| RA1-41U-750 | 41U | 1823 | 1995 | 450 | 600 | 660 | 750 |
| RA1-41U-900 | 41U | 1823 | 1995 | 450 | 600 | 810 | 900 |
| RA1-42U-900 | 42U | 1867 | 2039 | 450 | 600 | 810 | 900 |
| RA1-42U-1100 | 42U | 1867 | 2039 | 450 | 600 | 1010 | 1100 |
23英吋及特殊尺寸可接受訂製
板金加工、精密板金、機櫃、19吋機櫃、工業機櫃、網通機櫃、壁掛式機櫃、伺服器機櫃、資料中心機櫃、控制櫃、電控箱、鋁合金機箱、鋼製機櫃、儀器箱、工業機箱、系統機櫃、客製機櫃、軍用機櫃、醫療設備箱、航太設備箱
Sheet Metal Fabrication, Precision Sheet Metal, 19 inch Rack, Rack Cabinet, Industrial Rack, Server Rack, Network Rack, Wall Mount Enclosure, Control Cabinet, Electrical Enclosure, Aluminum Enclosure, Steel Cabinet, Instrument Cabinet, Equipment Enclosure, Mission Critical Rack, Military Grade Enclosure, Medical Equipment Cabinet, Aerospace Enclosure, ODM Rack Cabinet, OEM Enclosure Manufacturer
Floor Standing Rack、Open Frame Rack、Portable Rack Case、Shockproof Case、Rugged Enclosure、Mobile Rack、Control Console、Operation Desk、Video Wall Mount、Server Cabinet、Edge Computing Enclosure
系統整合商 機櫃 OEM/ODM、Rugged Enclosure Military Rack、Medical Equipment Cabinet Manufacturer、Rack Cabinet Manufacturer Taiwan、Industrial Rack OEM Taiwan、Custom Sheet Metal Enclosure Supplier
洪洋提供專業板金加工、精密板金與19吋機櫃解決方案,涵蓋工業機櫃、伺服器機櫃、資料中心機櫃、控制櫃、電控箱、醫療設備箱、軍用機櫃與航太設備箱。我們同時提供 OEM / ODM Rack Cabinet、Industrial Rack、Server Rack、Military Grade Enclosure、Medical Equipment Cabinet 與 Aerospace Enclosure 製造服務,為台灣與國際市場提供可靠的 Sheet Metal Fabrication 解決方案。